Fibro UNITÀ DI STAMPA DI ALLINEAMENTO E DI PROVA Italia
Sarebbe un nostro piacere inviarti un preventivo dopo aver compilato il modulo di contatto o dopo aver ricevuto un'e-mail con la vostra richiesta.

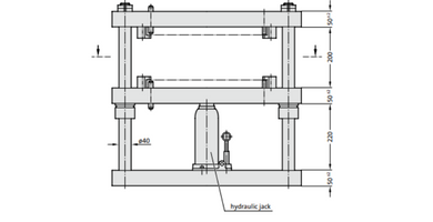
- La nostra gamma di prodotti comprende set di stampi secondo DIN/ISO e standard aziendali in acciaio, fuso o alluminio con guida a scorrimento o a sfera. Distribuiamo anche piccole presse, assemblaggi di utensili di precisione e set di utensili a cambio rapido
.
- Su richiesta, forniamo questi set di fustelle con altri elementi di guida, come ad esempio le guide a rulli. Naturalmente produciamo anche set di guide a colonna individuali su misura
.
- Chi preferisce set di fustelle convenienti riceverà il set di montanti in acciaio ECO-LINE, un set con boccole di guida scorrevoli placcate in bronzo.